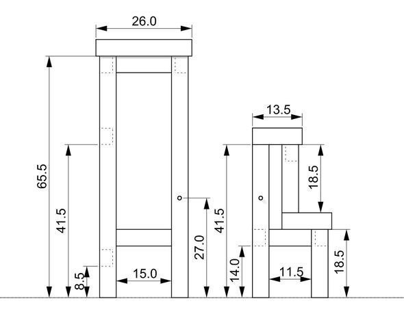
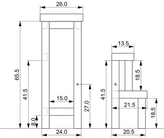
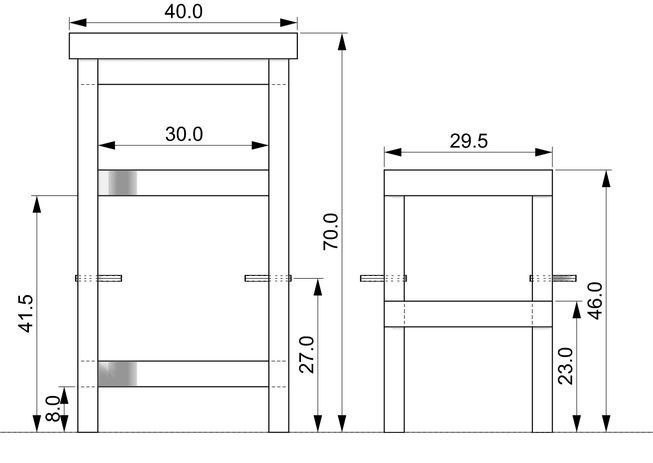
Стул-лесенка
Стул-лесенка
Стул-лесенка будет удобен и взрослым, и деткам.








Написать комментарий
Нет комментариев