Качели для дачи своими руками
Качели для дачи своими руками
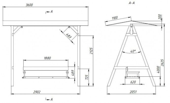
Конструкция состоит из четырех составных частей:
1. Каркас.
2. Сиденье.
3. Подвес.
4. Крыша.
Каркас
Изготавливается из деревянного бруса размером 100х100 (мм).
Детали каркаса соединяются между собой саморезами по дереву 4,8х95 (мм). На острых гранях снимается фаска.
Сиденье
Делается из деревянных брусков. Боковые бруски, дополнительно скрепляются болтами при помощи рым гаек.
Подвес
В качестве подвеса сиденья можно использовать веревку, металлический тросик или цепь. Подвес крепится, с одной стороны – к рым гайке, закрепленной на балке каркаса, с другой стороны – к рым гайке сиденья.
Крыша
Стропильная часть вырезается из досок, на которые закрепляется влагостойкая фанера. На фанеру кладется мягкая кровля. Столбы каркаса фиксируются к фундаменту по схеме, показанной на рисунке.
Справка.
Для увеличения срока службы собранной конструкции, на детали из дерева необходимо нанести несколько слоев защитного покрытия – это всевозможные пропитки и антисептики.







