Ажурный кейп с кокеткой
Ажурный кейп с кокеткой
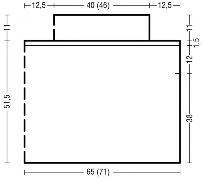
Кейп прямого кроя c широким вырезом и кокеткой свободно ложится на плечи и ниспадает вниз красивой кружевной вуалью. РАЗМЕРЫ 36/38 (40/42)
Потребуется
Пряжа (100% овечьей шерсти; 400 м/50 г) — 150 (200) г белой; круговые спицы №3,5 длиной 120 и 80 см.
Ажурный узор
Вязать по приведенной схеме. Начать с 9 п. перед 1-й стрелкой, затем повторять раппорт из 16 п., закончить 10 п. после 2-й стрелки. В высоту повторять с 1-го по 20-й ряд. В изнаночных рядах петли вязать по рисунку, накиды — изнаночными, остальные петли вязать по схеме.
Резинка
Вязать круговыми рядами: в четных рядах попеременно 1 лиц. скрещенная, 1 изн., в нечетных круговых рядах скрещенные петли вязать лицевыми, между ними вязать изнаночными.
Узор из вытянутых петель
1-й круг.р.: *вязать 1 лиц., сделать 2 накида, от * повторять. 2-й круг.р.: *сначала **спустить накиды и петлю вытянуть, от ** повторить 3 раза = 4 вытянутые петли, эти петли переснять на левую спицу и вывязать из них 1 лиц., 1 изн. и 1 лиц., от * повторять (= из 4 п. вывязать 3 п.).
Плотность вязания 24,5 п. х 34 р. = 10 х 10 см, связано ажурным узором; 30 п. х 26 р. = 10 х 10 см, связано резинкой.
Выполнение работы: перед, спинка и кокетка
На длинные круговые спицы набрать 323 (355) п. и вязать 2 р. платочной вязкой. Работу продолжить ажурным узором, при этом начать с левого нижнего края переда. Через 50 см = 172 р. от наборного ряда провязать на всех петлях 2 р. платочной вязкой, при этом во 2-м р. равномерно убавить 3 п. = 320 (352) п. Теперь петли замкнуть в кольцо и вязать 2 круг.р. узором из вытянутых петель = 240 (264) п.
Далее вязать для кокетки на более коротких круговых спицах еще 11 см = 30 р. резинкой, после этого закрыть петли.
Сборка
Для плечевого шва соединить открытый край в начале ряда кокетки на длину 12 см (по направлению вниз). Оставшуюся часть края оставить открытой для левой проймы.



